Plantas do Projeto
Amazonas
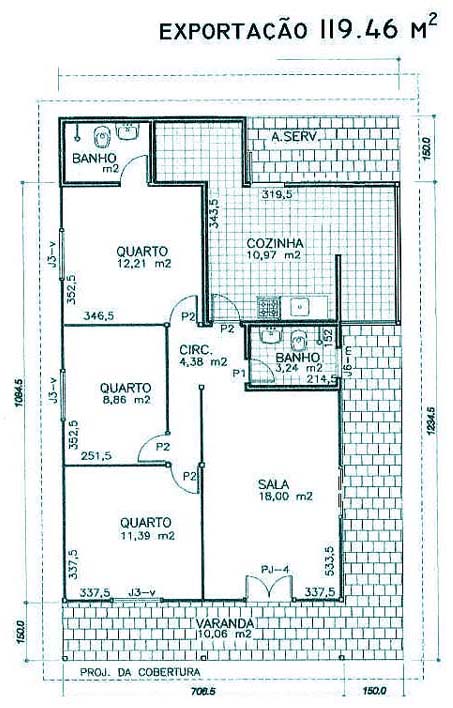
Exportação
Los Angeles
Lugano
Miami
Modelo de Alvenaria HouseKit
Nosso modelo de alvenaria é construído com paredes em concreto de 3,5 cm de espessura, utilizando um sistema inovador de encaixe macho/fêmea para garantir durabilidade e praticidade. As estruturas de cobertura incluem madeira de lei serrada, proporcionando robustez e beleza ao design. O acabamento inclui pisos cerâmicos e azulejos em áreas como banheiro e cozinha, com um toque de qualidade em cada detalhe. Com esquadrias de madeira de lei e sistema hidráulico e elétrico de alta qualidade, o modelo de alvenaria HouseKit combina conforto, eficiência e economia, sendo uma excelente opção para quem busca uma casa sólida e prática.
Detalhes do Produto
Memorial Descritivo
Confira abaixo as especificações completas do produto:
A Construção
- Paredes: Concreto de 3,5 cm de espessura, 50 cm de altura e 1,89 m de comprimento, encaixadas com sistema macho/fêmea. Montantes maciços de concreto de 10x10 cm, com pé direito aproximado de 2,60 m.
- Estrutura da Cobertura: Tesouras, caibros e vigas em madeira de lei serrada. Varandas e áreas de serviço com pés direitos e oitões em madeira maciça. Beirais com largura aproximada de 60 cm.
- Forro: Teto em laje. Áreas de abrigo, varanda e serviço sem forração.
Acabamentos
- Pisos e Azulejos: Banheiro e cozinha com azulejos até o teto. Pisos em cerâmica de até R$ 25,00/m² para todos os ambientes.
- Esquadrias: Janelas de madeira de lei, com venezianas em quartos. Portas internas e externas do tipo lisa. Vidros e instalação por conta do cliente.
- Ferragens: Cromadas, incluindo dobradiças, fechaduras e trincos.
- Pintura: Janelas e portas recebem duas demãos de verniz brilhante. Alvenarias com duas demãos de tinta, sem massa corrida.
Instalações
- Hidráulica: Tubulação em PVC, caixa d’água de 250 litros. Fossa, sumidouro e conexão do hidrômetro por conta do cliente.
- Elétrica: Fiação em cobre com revestimento antichama, protegida por disjuntores. Cozinha e sala possuem 3 tomadas, quartos 2 tomadas e banheiro com interruptor/tomada conjugados. Conexão do relógio até a caixa de distribuição por conta do cliente.
Banheiro
- Vaso sanitário com caixa acoplada.
- Lavatório de coluna em louça esmaltada.
- Kit de acessórios em metal cromado (5 peças).
- Ducha elétrica com haste cromada.